「新築の外構、何から手をつけていいか分からない…」
「この変形した土地、本当に素敵な庭になるんだろうか?」
「頭の中には理想のイメージがあるのに、業者さんにうまく伝わらない!」
一生に一度かもしれない、大切な住まいの外構計画。しかし、多くの方がこのような不安や悩みを抱えています。頭の中の漠然としたイメージだけで話を進めてしまうと、完成してから「こんなはずじゃなかった…」と後悔するケースは少なくありません。
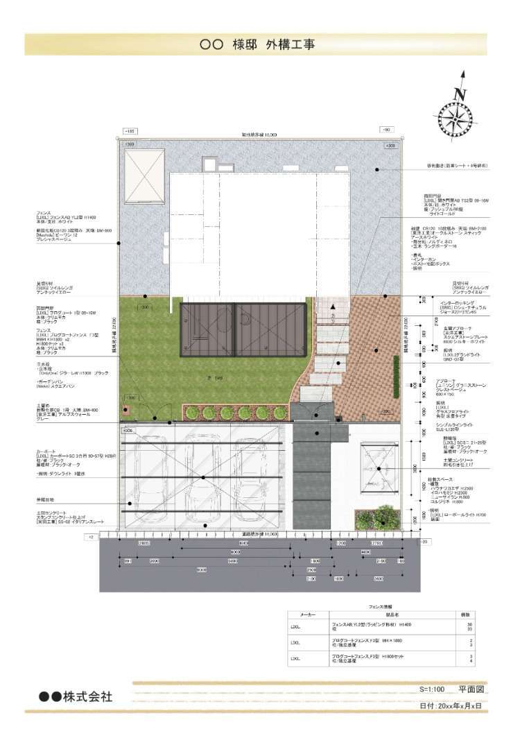
その不安、その悩み、専門家が描く「一枚の図面」がすべて解決します。
私たちIRONANO工業が提供するのは、単なるお絵描きではありません。お客様の理想を可視化し、失敗のリスクを限りなくゼロに近づけ、最高の外構づくりへと導くための「設計図」をご提供するサービスです。
■"なんとなく"で進めて後悔…よくある外構工事の失敗例
なぜ、事前に正確な図面が必要なのでしょうか?それは、「なんとなく」で進めた工事には、取り返しのつかない失敗が潜んでいるからです。
使い勝手の失敗
「カーポートを付けたけど、車のドアを全開にすると柱に当たる」「ウッドデッキを作ったけど、リビングからの日差しが全部遮られて部屋が暗くなった」
サイズ感の失敗
「おしゃれな物置を選んだけど、思ったより小さくて自転車が入らなかった」「完成してみたら、図面で見たイメージより庭がずっと狭く感じる」
費用の失敗
「工事が始まってから『ここにもコンクリートが必要』と言われ、追加費用が何十万円もかかった」
これらはすべて、事前の綿密な図面計画があれば防げたはずの失敗です。一枚の図面に投資することは、将来何十万円、何百万円もの損失と、取り返しのつかない後悔を防ぐための、最も賢明な選択なのです。
このような後悔を、あなたには絶対にしてほしくありません。
最高の外構づくりの第一歩は、まず「失敗しないための知識」を得ることです。あなたの土地の状況や漠然としたお悩みについて、専門家が無料でアドバイスします。
→ まずは無料で「失敗しないための個別相談」を予約する
■価格以上の価値を。「1枚15,000円~」に込めた私たちのこだわり
私たちの図面作成サービスは、決して「格安」ではありません。その価格には、他社には真似のできない、3つの確かな価値とこだわりが込められています。
・こだわり1:資格を持つ「エクステリアプランナー」が直接担当します
あなたの図面を担当するのは、単にCADソフトが使えるオペレーターではありません。植栽、構造物、素材、デザイン、そして関連法規まで熟知した、国家資格を持つエクステリアの専門家です。見た目の美しさはもちろん、10年後、20年後も快適に使える機能性、そして何より安全性を考慮した、プロならではのプランをご提案します。
・こだわり2:お客様の理想を形にする「初回無料」の徹底ヒアリング
私たちは、いきなり図面を描き始めることはありません。まずは無料のオンライン面談で、お客様の理想、ライフスタイル、趣味、将来の家族計画、そして何に悩んでいるのかを、時間をかけて徹底的にヒアリングします。この対話こそが、最高のプランを生み出すための最も重要なプロセスです。お客様自身も気づいていなかった潜在的なご要望を引き出し、形にしていきます。
・こだわり3:「他社で断られた変形地」こそ燃える、圧倒的な提案力
「こんな土地では何もできない」と、他社でさじを投げられてしまった経験はありませんか?私たちは、そんな**困難な条件であるほど、プロの腕が鳴ります。**高低差、いびつな敷地形状、厳しい法的制約…。あらゆる条件を逆手にとり、お客様の想像を超えるような、機能的で美しい空間を創り出す。その「いろいろ幅が広がる」提案力こそ、私たちの真骨頂です。
■【法人・個人事業主様へ】このようなお悩み、ありませんか?

当サービスは、個人のお客様だけでなく、外構工事を手がける工務店様や職人の皆様にもご活用いただけます。
「お客様への提案の質を上げたいが、図面を描けるスタッフがいない…」
「手描きの簡単な図では、なかなか成約に繋がらない…」
「作図業務に時間を取られて、本来の現場作業に集中できない…」
このようなお悩みは、私たちに作図業務をアウトソーシングすることで解決できます。美しいパース図は、お客様の完成イメージを具体的にし、信頼感を高め、契約率の向上に直接貢献します。

忙しい皆様に代わって、専門家が見栄えのする高品質な図面を作成。皆様は本来の強みである施工業務に集中していただけます。事業のパートナーとして、ぜひ当サービスをご検討ください。
私たちのこだわりと専門性、感じていただけましたでしょうか。
資格を持つエクステリアプランナーが、あなたの悩みや理想に直接向き合います。他社で断られた難しい土地のご相談も、心から歓迎します。
→ エクステリアプランナーとの無料面談に申し込む
■サービスご利用の流れ
安心してご依頼いただくために、分かりやすいステップをご用意しています。
Step 1:お問い合わせ
まずは公式サイトのフォームまたはお電話にて、お気軽にご連絡ください。
Step 2:無料オンライン面談
エクステリアプランナーが直接、お客様の現状の悩みやご要望をヒアリングします。(約60分)
Step 3:プラン・お見積もりのご提案
ヒアリング内容に基づき、図面作成のプランとお見積もりをご提示します。
Step 4:ご契約・作図開始
内容にご納得いただけましたら、ご契約となります。専門家が作図作業を開始します。
Step 5:図面データ納品
完成した図面をデータ(PDF等)で納品いたします。この図面を元に、ご自身でDIYに挑戦したり、お近くの工務店様に見積もりを依頼したりすることが可能です。
■分かりやすい料金体系
透明性の高い料金設定で、安心してご依頼いただけます。
【基本料金】
図面/パース図作成: 1枚 15,000円(税別)~
※上記には「初回オンライン面談(約60分)」が含まれます。
敷地の規模や、ご要望の複雑さによって料金は変動します。詳細は面談後のお見積もりにてご提示します。

【有料オプション】
設計担当者との面談(2回目以降): 1回 3,000円(税別)
初回面談後、さらに詳細な打ち合わせをご希望の場合にご利用ください。
その他オプション
お客様のご要望に応じて、「建物を含めた詳細なパース図の作成」や「複数パターンの提案」など、各種オプションも柔軟にご用意しております。詳細は無料面談の際にヒアリングの上、最適なプランとしてご提案させていただきます。
■まとめ:最高の外構づくりは「最高の一枚の図面」から始まる
理想の外構。それは、ただおしゃれな商品を並べることではありません。あなたの土地の特性を最大限に活かし、あなたの暮らしに寄り添い、何十年も愛せる空間を創り上げることです。
そして、その成功の9割は、工事が始まる前の「最高の一枚の図面」で決まると言っても過言ではありません。
「まずは専門家の意見を聞いてみたい」
「この土地で何ができるのか、可能性を知りたい」
どんな動機でも構いません。後悔しない外構づくりの第一歩を、私たちと一緒に踏み出してみませんか?
まずは無料の初回面談で、あなたの理想や悩みをとことんお聞かせください。
→ 専門家との無料初回面談に申し込む
お電話でのお問い合わせも受け付けております。
TEL:0120 - 555 - 407

